Year: 2016
Põlva, Estonia
730 m2
Architecture: Kadarik Tüür Arhitektid
Engineering: Laur Lõvi, Indrek Mäe
Client: Peetri Puit OÜ
Interior design team: Kadri Tamme, Harri Kaplan, Liis Mägi
Photos: Tõnu Tunnel

Arcwood by Peetri Puit is an estonian company that produces engineered wood products from laminated wood to CLT panels with a big part of the work being custom made orders. Their new factory, opened in 2016, is located in Põlva, south Estonia.

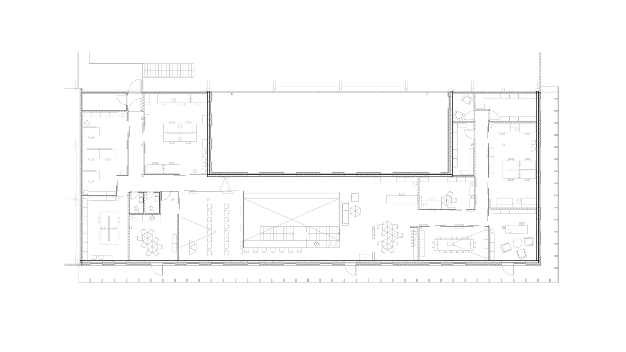
At first, the intention was to build two separate buildings – an office and a simple factory building. But during the work process the two merged together with the office block acting as a presentable entrance for both workers of the office as well as workers of the factory. Cylindrical columns in front of the entrance create an unique landscape that continues on in the courtyard.

The construction of the entire complex is made out of wood – the main bearing construction is made from laminated wood while CLT panels are used for walls. All of the constructions are presented and visible. Exterior wood elements are protected from the sun, wind and rain with a double facade made out of glass. This creates a half exterior half interior space that can be used by the workers as a balcony.

Wood is the primary theme throughout the complex that continues also in the interior architecture both in the office block as well as in the factory part of the building. Opened wood constructions create a warm and friendly interior space in the usually cold and empty production building. Skylights, located right above the workstations, let in some natural light to the closed factory.