Year: 2015
Tallinn, Estonia
3 500 m2
Competition
Architecture: Kadarik Tüür Arhitektid

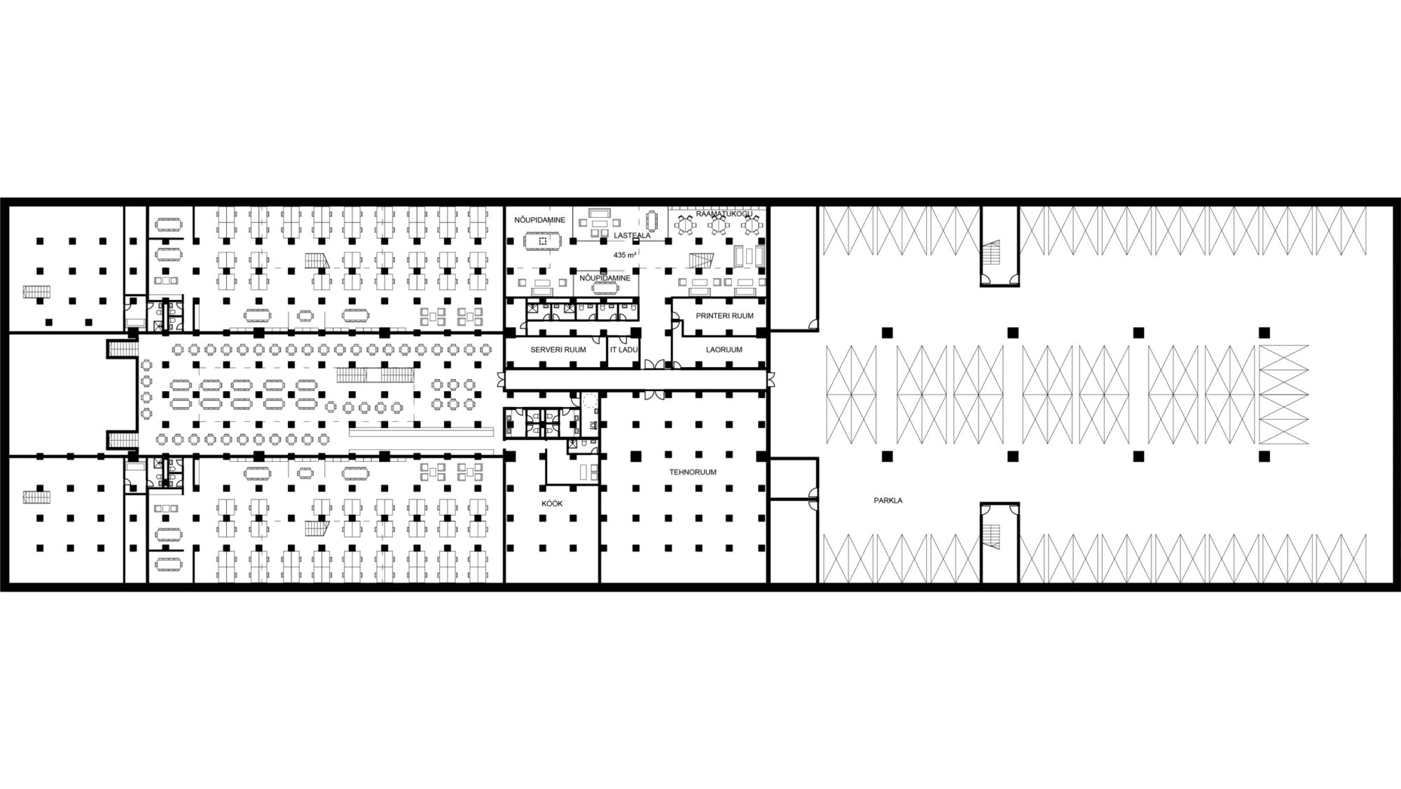
The renovation of the Luther’s Machinery Hall that was originally used for furniture production for a contemporary office building required attention to detail. The existing space is rich in history and a true pearl of an industrial architecture, therefore, the interior design aims to be subtle and delicate – nothing more than
needed.