Year: 2015
All over Estonia
50 – … m2
Client: Olerex AS

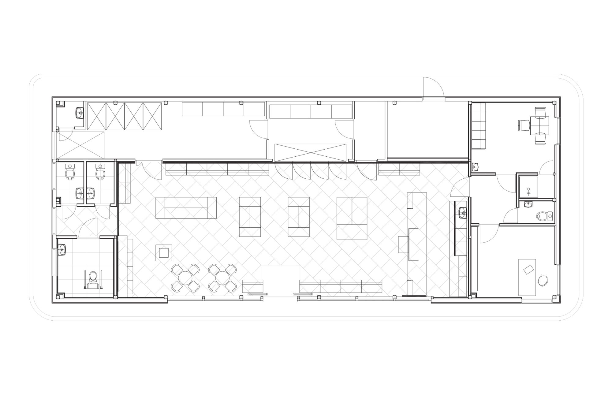
Olerex Gas Station Chain ordered a new interior concept for the gas station shops with the aim to create a friendlier and cosier environment for the customer. Step-by-step sations all over Estonia are being improved following the design principles of the the new improved shops.